Nieruchomość kwalifikuje się do kredytu bez wkładu własnego.
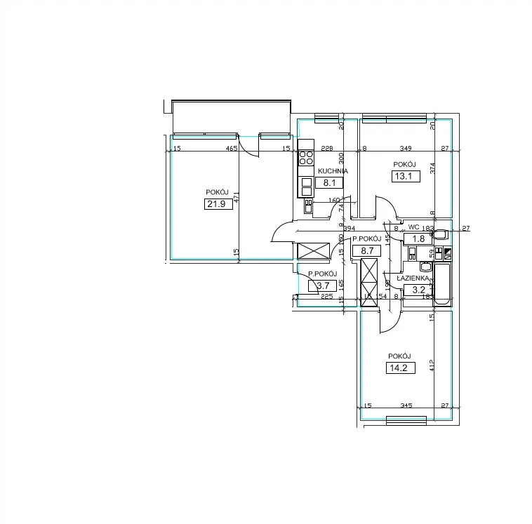
Biuro nieruchomości AreaHouse Studio Wola Duchacka s.c. proponuje na sprzedaż mieszkanie 3-pokojowe o powierzchni 75 m² położone na 3. piętrze na ulicy Wysłouchów.
Mieszkanie składa się z trzech ustawnych pokoi, oddzielnej kuchni, łazienki i osobnej toalety.
Dodatkowym atutem jest zabudowana loggia, która świetnie sprawdzi się jako miejsce do relaksu lub pracy zdalnej. Przestronny przedpokój umożliwia wygodne urządzenie szafy wnękowej, a w całym mieszkaniu na podłogach znajduje się elegancki parkiet, który dodaje wnętrzu ciepła i przytulności.
Mieszkanie posiada świadectwo charakterystyki energetycznej, co podnosi jego wartość i komfort użytkowania.
Lokalizacja to jeden z największych atutów nieruchomości.
Ulica Wysłouchów położona jest w spokojnej, zielonej części Woli Duchackiej, a jednocześnie zapewnia szybki dostęp do komunikacji miejskiej – w pobliżu znajdują się przystanki autobusowe i tramwajowe. W okolicy znajdują się sklepy, szkoły, przedszkola, przychodnie, tereny rekreacyjne i parki, co sprawia, że codzienne życie jest wygodne i komfortowe.
To idealna propozycja dla rodziny szukającej komfortu, przestrzeni i funkcjonalnego układu pomieszczeń w dobrze skomunikowanej części Krakowa.
W GALERII ZDJĘĆ KILKA PRZYKŁADOWYCH WIZUALIZACJI ARANŻACJI
Cena: 777000 zł
Czynsz: ok. 1000 zł
Kontakt:
Biuro nieruchomości AreaHouse
ul. Klonowica 24/LU2, 30-654 Kraków
OFERTA NA WYŁĄCZNOŚĆ
